Entwurfsplanung
Ein detaillierter Entwurfsplan, der zur verbindlichen Basis für die Bauausführung werden kann.
Bei einem Termin in Ihrem Garten machen wir uns zunächst ein genaues Bild von den räumlichen Gegebenheiten. Gemeinsam schauen wir, welche Materialien und Pflanzen zu Ihrem Stil und zur Atmosphäre des Ortes passen. Aus diesen Eindrücken entsteht Schritt für Schritt ein fundiertes Konzept, das alle wichtigen Grundlagen berücksichtigt. Darauf aufbauend entwickeln wir einen ausführlichen Entwurfsplan mit Leistungsverzeichnis – die klare Basis für Ihren neuen Garten.
In drei Schritten zur Entwurfsplanung
Grundlagenermittlung
Der erste Schritt ist eine Grundlagenanalyse und die Abstimmung der Aufgabenstellung. Dazu gehören:
- eine Besprechung und Beratung Ihrer Wünsche bei Ihnen vor Ort
- Analyse Ihres Grundstücks (u.a. Boden- und Lichtverhältnisse, Wasserverfügbarkeit, Bestandsbepflanzungen, sonstiges)
- die Erfassung von rechtlichen Vorgaben aus Gemeindesatzungen, Bauordnung, Bebauungsplänen, Nachbarschaftsrecht, Baunutzungsverordnung, Natur-, Boden- und Wasserschutz
- Ermitteln eines Budgets als Planungshilfe
Vorentwurfsplanung
In der Vorplanung wird ein Planungskonzept erstellt. Hierzu gehören:
- Erarbeitung von bis zu zwei Gestaltungsvorschlägen nach Ihren Wünschen und Budgetvorgaben
- Berücksichtigung und Bezugnahme auf rechtliche Vorgaben, Bebauungspläne, Denkmal- und Naturschutz, Nachbarschaftsrecht, Versiegelungswerten, Bauordnungen, Topographie, funktionalen und ästhetischen Anforderungen, sowie ökologischen und vegetationstechnischen Rahmenbedingungen
In der Vorplanung erhalten Sie:
- maßstabsgerechte Aufsichten
- Perspektivskizzen
- unverbindliche Kostenschätzungen gemäß Varianten
Diese Kostenschätzungen hat keinen Anspruch auf Vollständigkeit, sondern verdeutlicht den Umgang mit Ihrem Budget. Die Vorentwurfsphase wird gemeinsam mit der Festlegung auf eine Gestaltungslösung schriftlich abgeschlossen. Nachträgliche Änderungen des verabschiedeten Planes erhöhen die Planungskosten. Schon jetzt können Ausführungszeit und -zeitraum festgelegt werden.
Entwurfsplanung
Im Entwurf werden Detaillösungen und Bauweisen entwickelt und bepreist. Hierzu gehören:
- 3D-Visualisierung und Film
- Massenermittlung und Leistungsbeschreibungen
- Materialbemusterungen- und festlegungen
- Abstimmungen über Pflanzen und Ausstattungselemente
Sie erhalten:
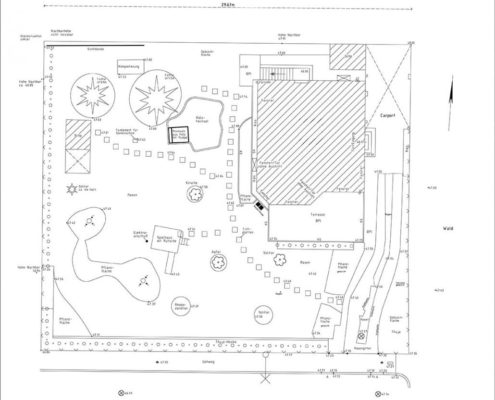
- einen maßstäblichen und beschrifteten Entwurf
- einen 3D- Film
- ein Leistungsverzeichnis der Arbeiten, Materialien, Ausstattungen und Pflanzen
- eine Kostenermittlung für die dargestellten Leistungen aus unserem Haus
Die Entwurfsphase wird gemeinsam abgeschlossen. Nachträgliche Änderungen des verabschiedeten Planes werden als Zusatzleistung abgerechnet.
Zahlungsmodalitäten. Mit Erhalt des Planungsauftrages ist eine Rechnung in Höhe von 50% zu begleichen. Nach Verabschiedung der Vorplanung folgt eine weitere Rechnung, in Höhe von 30 % sowie die Schlussrechnung, in Höhe von 20 %, nach Beendigung der Planung.
Planungskosten
Die Kosten für unsere Entwurfsleistungen richten sich nach den Anforderungen, die an die Planung gestellt werden, sowie der Grundstücksgröße. Diese werden in drei Kategorien eingeteilt und individuell von den Gartenplanerinnen festgelegt. Beispiele:
– mittlere Planungsanforderungen ab 6.800, – € brutto (Grundstücksgröße bis 1000 m²; die Topographie des Grundstückes bildet ein ebenes bis mäßig geneigtes Gelände);
– hohe Planungsanforderungen ab 9.900, – € brutto (Grundstücksgröße bis 2000 m²; es sind Schutzgebiete vorhanden, die bei der Planung berücksichtigt werden müssen)
Sie haben Interesse an der Gartenplanung? Dann rufen Sie uns einfach an unter 03327 – 5810-0 oder schreiben Sie uns eine kurze Nachricht über das Kontaktformular. Wir melden uns so schnell wie möglich zurück.





